ATS-3-DGS-ZKIT
Came drive for double-leaf gate, set with photocells
11.864,10 Kč
Unit price
/
Unavailable
without VAT
with VAT
Stock availability
SK Krompachy
> 25
CZ Říčany u Brna
0
CZ Hradec Králové
0
CZ Praha Otice
6
CZ Moravany Brno
0
Kontakt
Kontakt
Pro více informací kontaktujte našeho obchodníka:
lubomir.petruska@umakov.sk
+421915093533 +393483490444
Popis
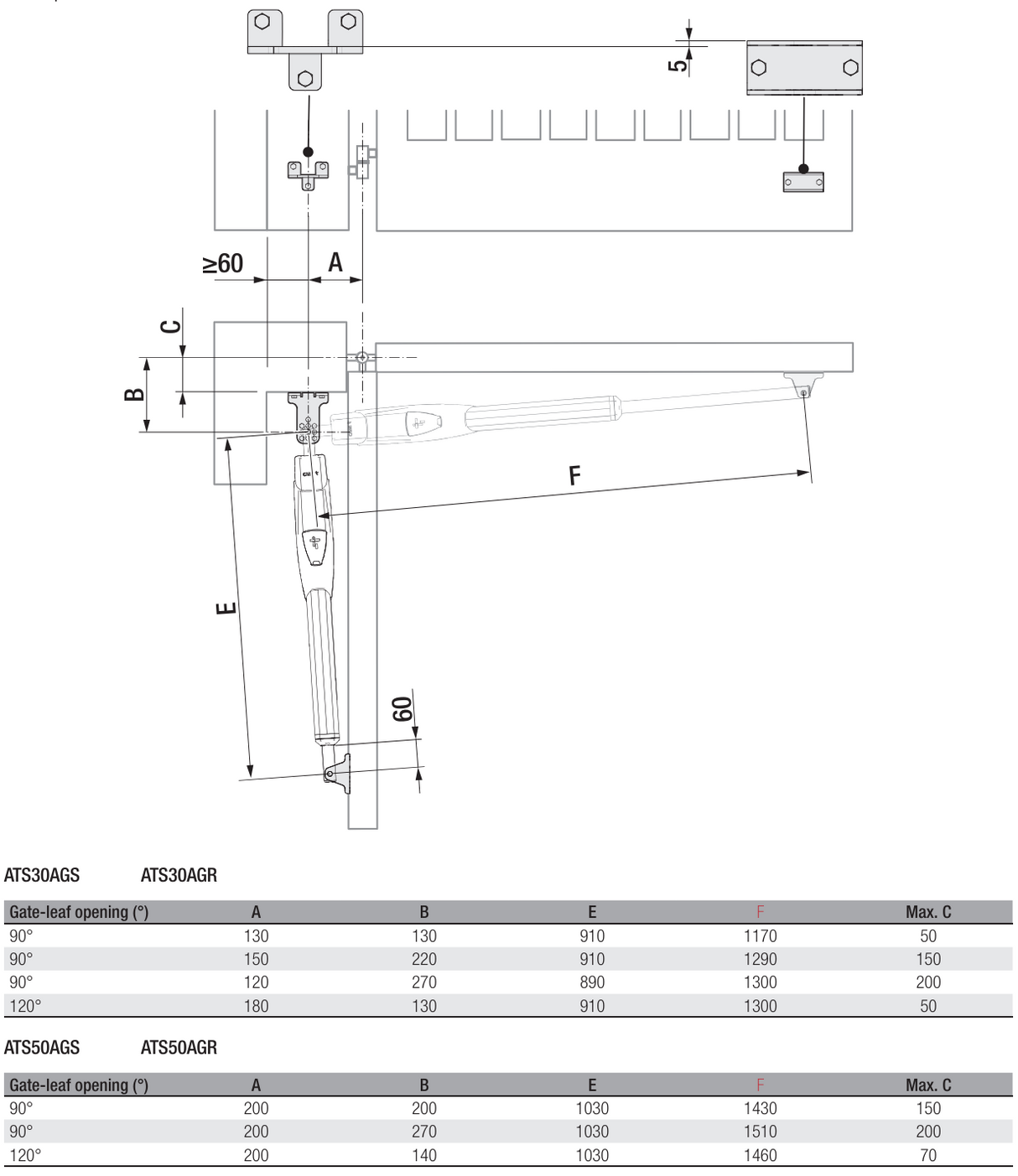
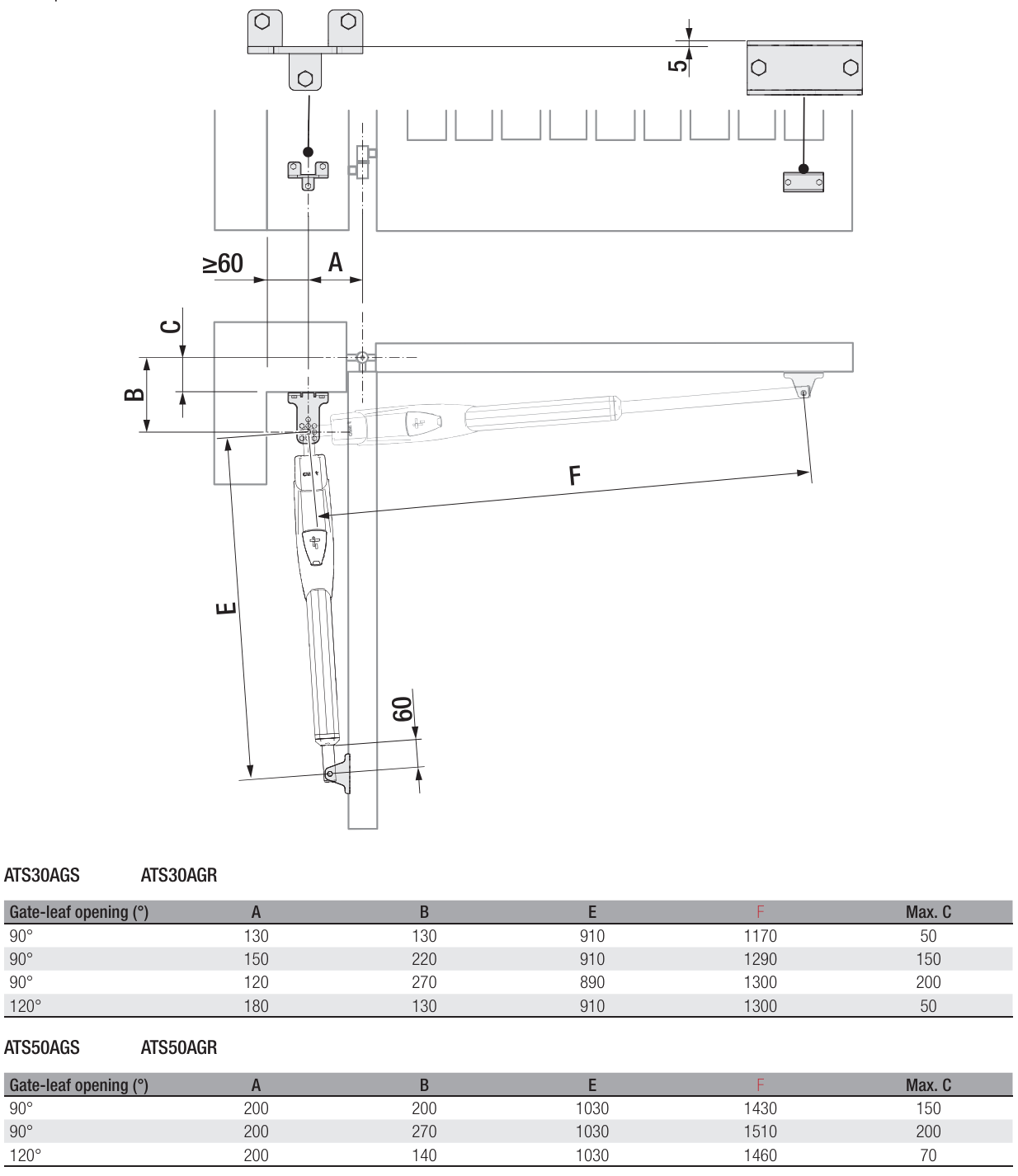
Possibility to anchor the drive on a wide post, the distance of the gate wing hinge axis can be up to 200mm.
Parametry
Mark
Information about producer of product
Came
Max. wing length
Maximum wing length for the given drive
3m
Recommended weight of the wing
Odporúčaná hmotnosť krídla brány pre správnu funkčnosť pohonu.
200kg
Drive slowdown
Information about the drive slowing down before the end position.
Drive decelerate before endpoint
Type
Threaded
Frequency (MHz)
Určuje frekvenciu ovládača a riadiacej elektroniky.
433
End point
Information about the need for gate end stops with the selected drive.
No need end points
Code type
Typ kódu pre správnu kombináciu ovládača s elektronikou.
Rolling
Power supply
Type and value of the power supply voltage
AC 230V
Motor power supply
Type and value of the motor supply voltage
DC 24V
Performance
80W
Force
400-3000N
Speed
Parameter of the drive feed speed
90° - 15-30s
Controller
ZL65
Encoder
Yes
Ke stažení
Části sestavy
CAME drive for swing gates, 24 V DC ATS-30-DGS
2 pcs
Mark
Came
Max. wing length
3m
Recommended weight of the wing
200kg
Electronics Came for double gate, 24 V DC ZL65
1 pcs
Mark
Came
Drive slowdown
Drive decelerate before endpoint
Radio card 433,9 MHz AF-43-S
1 pcs
Mark
Came
Remote controller CAME TOP roling code, 4CH, CAME TOP44RBN
1 pcs
Mark
Came
Frequency (MHz)
433
Code type
Rolling
Photocell for plaster montage max. 10m DIR-10
1 pcs
Mark
Came
Power supply
12-24V AC
Protection level
IP54



