CAME pohon pro křídlovou bránu
Kontakt
Kontakt
Pro více informací kontaktujte našeho obchodníka:
Popis
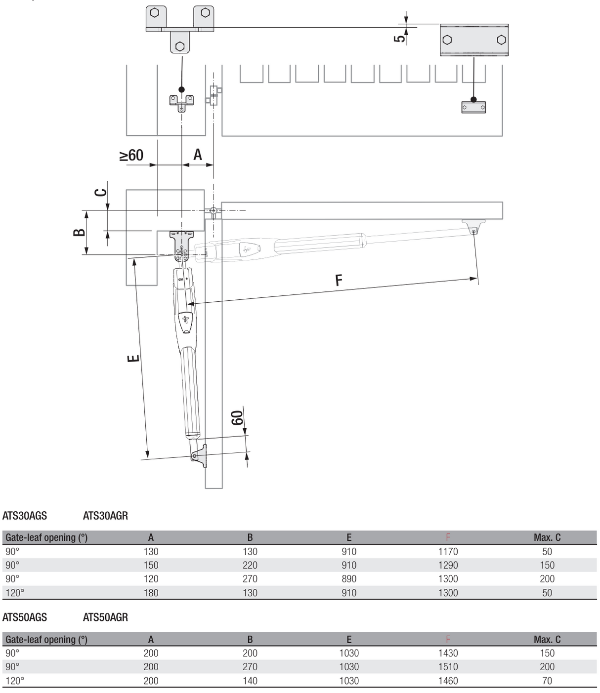
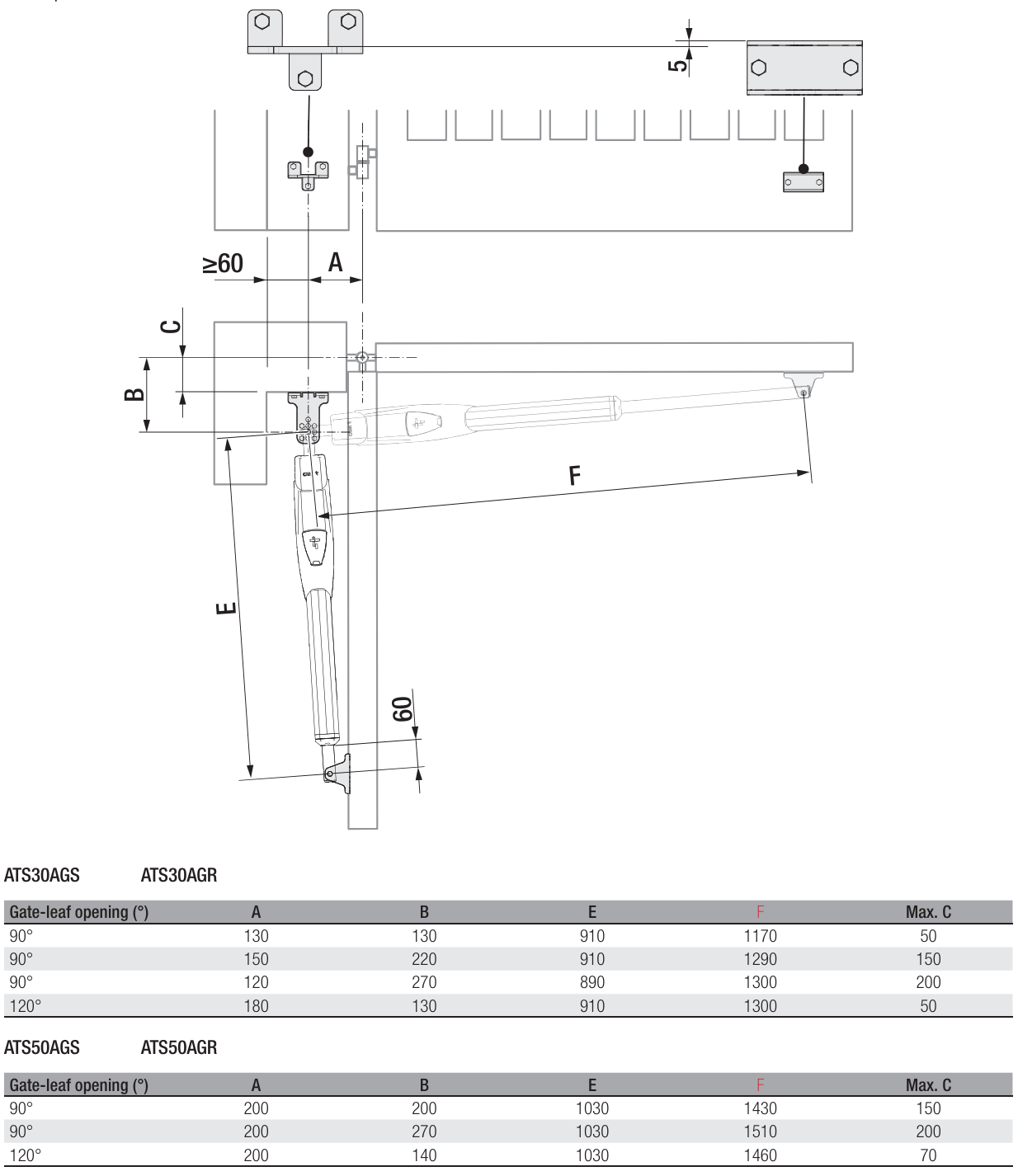
Parametry
Katalog
V setech
Came pohon pro jednokřídlou bránu, sada s fotobuňkami ATS-3-AGS-LEFT/RIGHT-ZKIT
Skladová dostupnost
Historie ceny
CAME pohon pro křídlovou bránu ATS-30-AGS
Řídící jednotka CAME s krabicí, ZF-1N
Pohon CAME- rádiová karta 433,9 MHz AF-43-S
Dálkový ovládač CAME fix code, 2CH, CAME TOP-432-EE
Fotobuňky CAME max. 10m DIR-10
Came pohon pro dvoukřídlou bránu, sada s fotobuňkami ATS-3-AGS-ZKIT
Skladová dostupnost
Historie ceny
CAME pohon pro křídlovou bránu ATS-30-AGS
Řídící jednotka CAME s krabicí, ZF-1N
Pohon CAME- rádiová karta 433,9 MHz AF-43-S
Dálkový ovládač CAME rolling code, 4CH, CAME TOP44RBN
Fotobuňky CAME max. 10m DIR-10


